Обяви За нас Контакти
Продава ОФИС
град София, Младост 2
ул. Свети Киприян
105 000 €
205 362.15 лв.

(1 641 €, 3 209.52 лв./m2)
Цената е без ДДС
Коригирана в 16:00 на 20 октомври, 2025 год.
Обявата е посетена 372 пъти.
Площ:
64 m2
Етаж:
Партер от 5
Газ:
НЕ
ТEЦ:
ДА
Строителство:
Тухла, Ще бъде въведен в експлоатация 2025 г.

Описание на имота:


Директни продажни от инвеститор! БЕЗ КОМИСИОННА!
Б.П. Строй предлага за продажба ОФИС, който се намира в новострояща се сграда в гр. София, ж.к. Младост 2. Сградата се намира на ул. Св. Киприян, граничи с парк 'Въртопо' и е на 5 минути пешеходно разстояние от Метростанции Александър Малинов и Акад. Ал. Теодоров Балан, ключови спирки на градски транспорт, училища, детски градини, магазини на големи хранителни вериги.

Сградата е на етап Акт 14, а довършителните работи ще бъдат изпълнени с висококачествени материали
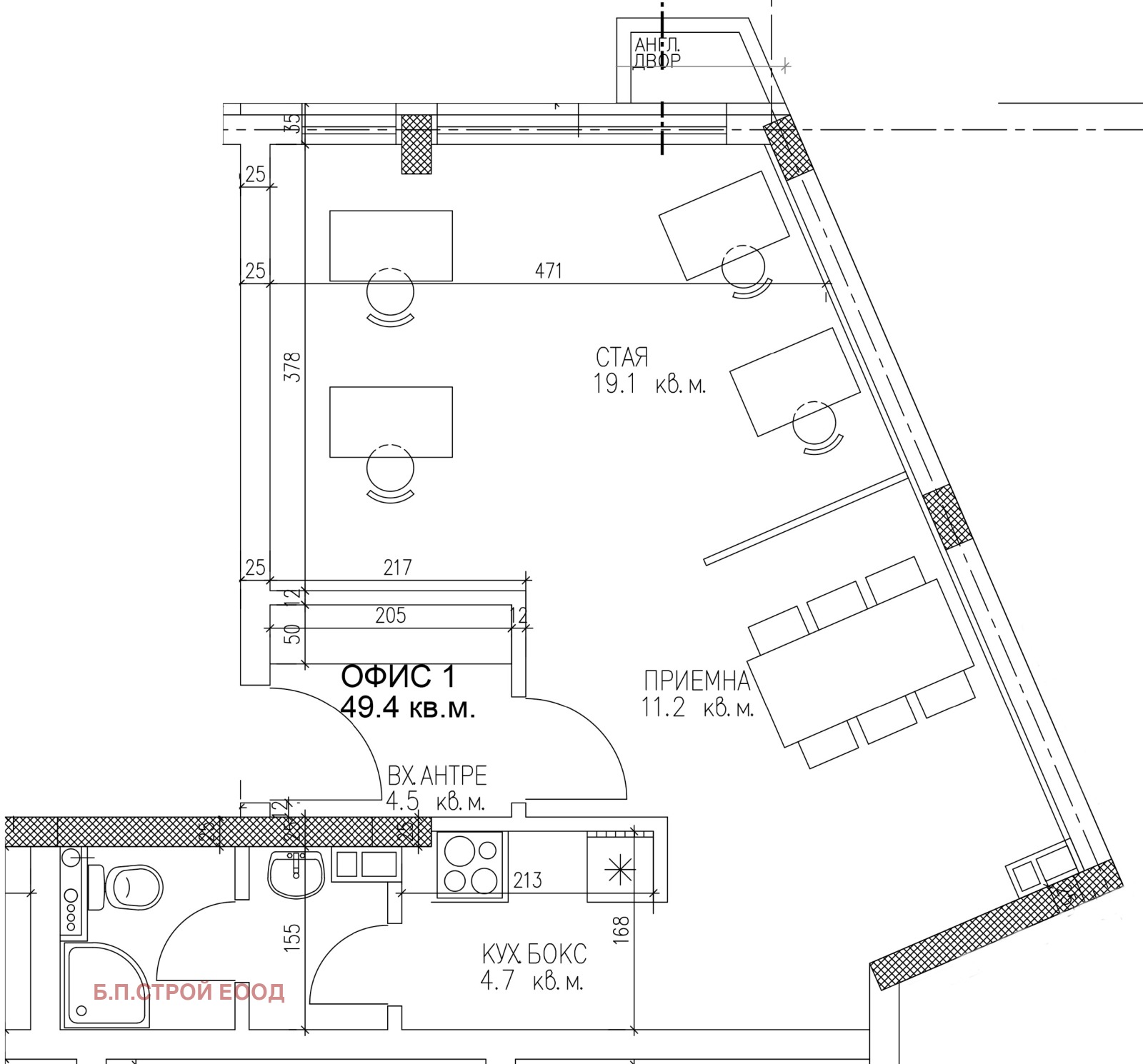
Офисът се състой от входно антре, офисна част, кухненски бокс, баня с тоалетна и прилежащ склад в сутерена на сградата.
Има възможност за закупуване паркомясто.

За повече информация и организиране на огледи : 0893 00 73 73 или 0883 303 123
Виж всички обяви в bpstroi.bazar.bg или тук
Особености
Тухла
Видео наблюдение
Контрол на достъпа
Охрана
За контакт:
0893007373
Агенция:
Б.П.СТРОЙ ЕООД
0893007373
В imot.bg от 2024 г.
bpstroi.imot.bg
Адрес:
област София, гр. София, гр. София, р-н Възраждане, ХРИСТО БОТЕВ, 48, ет. 3
ИЗПРАТИ ЗАПИТВАНЕ
ИЗПРАТИ ЗАПИТВАНЕТО

Продава ОФИС
град София, Младост 2
ул. Свети Киприян
Обява: 1g174057134458276

105 000 €
205 362.15 лв.
(1 641 €, 3 209.52 лв./m2)

Цената е без ДДС
ЗАПАЗИ ОБЯВАТА

Местоположение: град София, Младост 2, ул. Свети Киприян